Agenzia Immobiliare Carbonari

NUOVA COSTRUZIONE APPARTAMENTO N. 3 PIANO SECONDO - VIA III TRAVERSA RIF. 689

RIF.
689
Appartamenti
Residenziale
3
Letto/i
2
Bagno/i
141
€800.000
Trattativa Riservata -
Milano Marittima
Via III Traversa

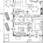
S ituato al primo piano di una moderna palazzina di nuova costruzione nel cuore di Milano Marittima, questo elegante appartamento rappresenta la perfetta sintesi tra comfort, funzionalità e stile contemporaneo.

L’accesso all’abitazione avviene comodamente tramite ascensore oppure attraverso una raffinata scala interna, garantendo praticità e versatilità. L’ingresso si apre su una luminosa zona giorno, progettata per offrire ambienti accoglienti e ben distribuiti, affiancata da una cucina abitabile di circa 31 mq, ideale per vivere momenti conviviali in famiglia o con ospiti.

La zona notte è studiata per assicurare il massimo benessere: troviamo una spaziosa camera matrimoniale, una seconda camera con letto da una piazza e mezzo e una terza stanza estremamente versatile, perfetta come ripostiglio, studio o palestra, personalizzabile secondo le proprie esigenze. Completano l’abitazione due bagni, di cui il principale di circa 6 mq, ampio e funzionale, oltre a un secondo servizio a disposizione dell’appartamento ugualmente comodo e funzionale.

Elemento distintivo della proprietà è il magnifico terrazzo di circa 45 mq che abbraccia l’appartamento su due lati, offrendo uno spazio esterno ideale per momenti di relax, pranzi all’aperto o per godere della piacevole atmosfera della località. A valorizzare ulteriormente questo ambiente esclusivo è la presenza di una jacuzzi, pensata per regalare momenti di puro benessere e relax in totale privacy.

A completare la proprietà, al piano terra, è presente un comodo posto auto scoperto di proprietà esclusiva, un valore aggiunto fondamentale per vivere la zona con la massima comodità.

L’immobile, di 141 mq commerciali, si inserisce in un contesto moderno e curato, perfetto sia come residenza principale sia come investimento di prestigio in una delle località più rinomate della riviera romagnola.

Consegna prevista per fine 2027.
L’acquisto avviene da società, con applicazione dell’IVA al 4% per prima casa e al 10% per seconda casa.

Una soluzione abitativa esclusiva, pensata per chi desidera vivere Milano Marittima con eleganza e comfort.

Per maggiori informazioni contattaci al 335/6531733 oppure al 338/1567376.

Caratteristiche
  • Appartamento
  • Ascensore
  • Allarme
  • Aria Condizionata
  • Balcone
  • Non Arredato
  • Posto auto
  • Porta blindata
  • Riscaldamento
  • Terrazzo
Classe Energetica
A

Altri Immobili

Vendita
Quick View

VILLINO IN CENTRO A MILANO MARITTIMA RIF. 370

3
3
180
m ²
€1.450.000
Affitto
Quick View

VILLETTA TERRACIELO IN AFFITTO A PINARELLA RIF. 676

3
3
200
m ²
€6.000
Vendita
Quick View

VILLETTA TERRACIELO DA RISTRUTTURARE A MILANO MARITTIMA RIF. 683

1
4
160
m ²
€490.000
Agenzia Immobiliare Carbonari