Agenzia Immobiliare Carbonari

APPARTAMENTO PIANO TERZO NUOVA COSTRUZIONE IN VENDITA A CERVIA RIF. 652

RIF.
652
Appartamenti
Residenziale
3
Letto/i
2
Bagno/i
131
€620.000
Trattativa Riservata - no
Cervia
Via Urano 26

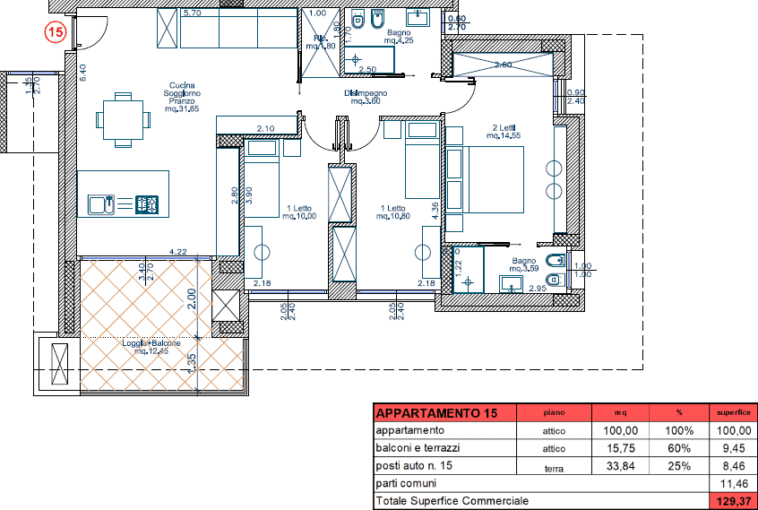
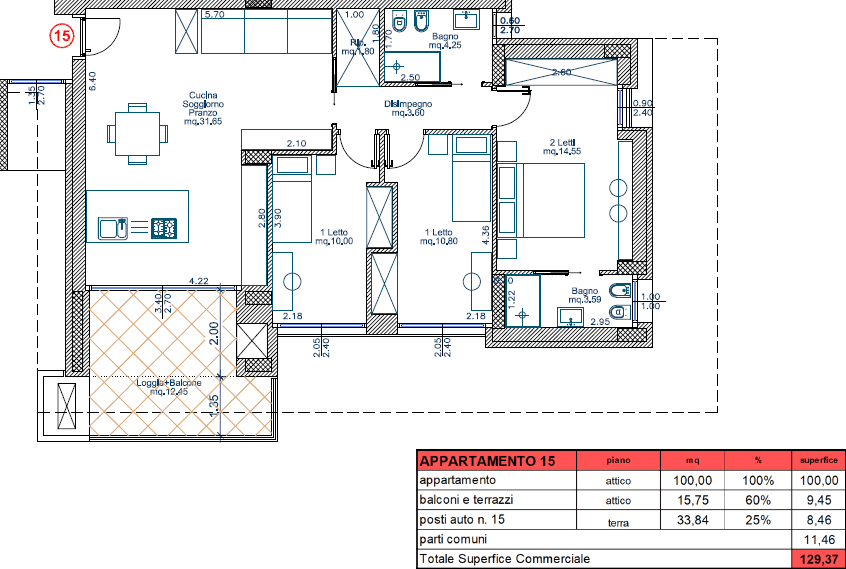
Scopri questo splendido quadrilocale al piano terzo, situato in via Urano a Cervia. Questo immobile di nuova costruzione, mai abitato, offre un’ampia zona giorno perfetta per trascorrere momenti indimenticabili con la famiglia e gli amici. Con una superficie commerciale di 131 m² e 103 m² calpestabili, ogni angolo è stato progettato per garantire comfort e funzionalità.

L’appartamento dispone di tre camere da letto, tra cui una matrimoniale con bagno privato, ideale per la tua privacy. Le due camere con letti singoli sono perfette per accogliere ospiti o bambini.
Inoltre, un secondo bagno serve comodamente il resto della casa. Non dimenticare il terrazzo di 14 mq, dove potrai goderti il sole e organizzare piacevoli cene all’aperto!

Questo immobile è dotato di due posti auto di proprietà a piano terra e offre accesso adattato per persone con mobilità ridotta, rendendolo adatto a tutti. Il riscaldamento è garantito da una pompa di calore elettrica, mentre l’aria condizionata assicura un clima ideale in ogni stagione. La classe energetica A4 garantisce un consumo energetico ridotto, contribuendo così al rispetto dell’ambiente.

Non perdere l’opportunità di vivere in un contesto moderno e funzionale a Cervia!

Contattaci al 335/6531733 oppure al 338/1567376 per maggiori informazioni e per prenotare una visita.

Caratteristiche
  • Appartamento
  • Ascensore
  • Aria Condizionata
  • Arredato
  • Balcone
  • Condominio
  • Posto auto
  • Porta blindata
  • Riscaldamento
Classe Energetica
A

Altri Immobili

Vendita
Quick View

VILLINO IN CENTRO A MILANO MARITTIMA RIF. 370

3
3
180
m ²
€1.450.000
Affitto
Quick View

VILLETTA TERRACIELO IN AFFITTO A PINARELLA RIF. 676

3
3
200
m ²
€6.000
Vendita
Quick View

VILLETTA BIFAMILIARE IN VENDITA - VIA ARIOSTO RIF. 204

4
4
250
m ²
€1.200.000
Agenzia Immobiliare Carbonari